Appartements
4 pièces -
109m2 -
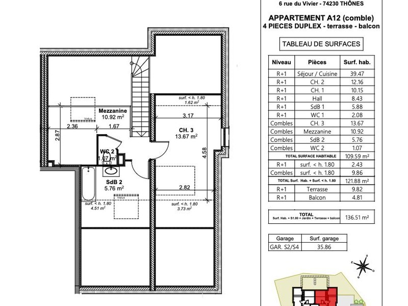
Situé dans un quartier privilégié de Thônes, dans le nouveau programme LES CHALETS D'ARMAND, à 20km d'Annecy et 15 min des stations des Aravis et proche de toutes commodités à pied, découvrez cet appartement T4 Duplex situé au dernier étage d'une surface habitable de 122.32 m² dont 109.59 m² Loi Carrez, dans une mini-résidence avec ascenseur sans vis à vis.Il propose une entrée, une salle de bain avec baignoire ou douche, un WC séparé, 2 chambres dont une donnant accès au balcon de 4.81 m² orienté Ouest et une autre avec un placard, une cuisine ouverte sur séjour (soit 39.47 m² de pièce de vie). La pièce de vie donne accès à une terrasse de 9.82 m² orienté Sud.A l'étage il propose, une mezzanine, une chambre, une salle de bain et un WC séparé.Côté annexes, vous profiterez d'un local à vélos collectif. Possibilité d'acquérir un garageFuture construction avec de belles prestations : parquet ou carrelage dans toutes les pièces avec personnalisation de tous vos sols et la couleur de vos faïences de cuisine et salle de bains, visiophone pour un accès sécurisé, menuiserie double-vitrage isolant, système de chauffage par pompe à chaleur… Future copropriété de 9 logements (répartis en 2 mini-résidences) - livraison 4ème trimestre 2024/ 1er trimestre 2025. Hors DPE. Bilan de Performance Énergétique (BPE) du projet : A.Renseignements en agence, par mail ou par téléphone. D'autres T4 Duplex sont également disponibles ! Frais de notaire réduits. Honoraires à la charge du vendeur. Honoraires à la charge du vendeur. Dans une copropriété de 9 lots. Aucune procédure n'est en cours. DPE en cours. Les informations sur les risques auxquels ce bien est exposé sont disponibles sur le site Géorisques : georisques.gouv.fr.
Situation
Caractéristiques
Diagnostic énergétique
Non disponible

